Sonnige und zentrale Lage im Herzen von Hummelsbüttel. Moderne Doppelhaushälfte mit 6 Zimmern. (TF2)





1 / 9Projektpreis
795.300 €
Teilfläche: 2
Objektbeschreibung
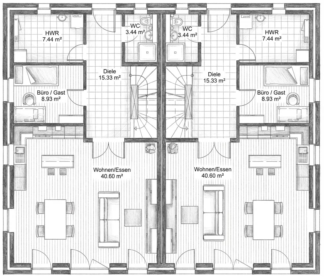
Modernes Bauprojekt für zwei Doppelhaushälften als Hamburger Stadtvilla. Gebaut wird im KfW40-Standard mit ca. 147 qm Wohnfläche. Dieses Angebot bezieht sich auf die im Lageplan mit "TF2" gekennzeichnete Teilfläche. Ausstattung und Technik werden auch gerne anhand Ihrer Vorstellungen und Vorgaben geplant. Im Rahmen der Planung können ebenfalls Ihre individuellen Grundrisswünsche berücksichtigt werden. Wir beraten Sie dazu gerne im persönlichen Gespräch. Ausstattungsmerkmale des Bauprojekts: KfW40-EE Standard für energieeffizientes und nachhaltiges Wohnen Fußbodenheizung im Erd- und Dachgeschoss Vollklinkerfassade für ein zeitloses und hochwertiges Erscheinungsbild Massive Innenwände im Erd- und Dachgeschoss für ein angenehmes Raumklima Individuelle Grundrissplanung nach Ihren Wünschen Vielfältige Sonderausstattungen auf Anfrage möglich Bei Interesse setzen Sie sich gern mit uns in Verbindung, um die ggf. noch offenen Fragen klären zu können.
Grundrisse


Dokumente & Unterlagen
Alle weiteren Details, Grundrisse und Zeichnungen können Sie gerne bei uns anfordern. Nutzen Sie dazu bitte das untenstehende Kontaktformular.
Weitere Informationen anfordern
Füllen Sie das Formular aus und wir senden Ihnen alle Details zu.